設計さんと打ち合わせ②
- 院長

- Nov 15, 2023
- 1 min read
まどりっちというソフトがあります。
図面を作成するためのソフトなのですが、それを使って自分なりの図面を書いてみました。
大変恐れ多いのですが、それを設計士さんに投げて検討いただきました。
本当に恐れ多い。。
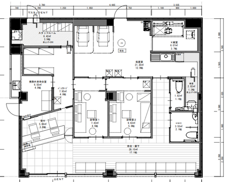
左が私が適当に描いた図面、右が設計士さんがそれを落とし込んでいただいた図面です。
設計士さん、素晴らしいです!
斜めのカウンターに美的センスが出ていますね!
引き続き検討です

まどりっちというソフトがあります。
図面を作成するためのソフトなのですが、それを使って自分なりの図面を書いてみました。
大変恐れ多いのですが、それを設計士さんに投げて検討いただきました。
本当に恐れ多い。。
左が私が適当に描いた図面、右が設計士さんがそれを落とし込んでいただいた図面です。
設計士さん、素晴らしいです!
斜めのカウンターに美的センスが出ていますね!
引き続き検討です

Blog
Comments